Opis nieruchomości
Dom w spokojnej okolicy, blisko lasu - Ksawerów Gmina Nowosolna
Na sprzedaż wolnostojący dom jednorodzinny z 1994 roku, położony w spokojnej i zielonej okolicy, w sąsiedztwie lasu. Idealna propozycja dla osób ceniących ciszę, przestrzeń i prywatność, a jednocześnie wygodny dojazd do miasta (wjazd na autostradę A1 zaledwie 4 km – 6 minut). Działka o powierzchni 3376 m² ma kształt prostokąta i daje możliwość podziału. Teren porośnięty drzewami liściastymi i iglastymi, z zadbaną zielenią niską.
PARAMETRY TECHNICZNE:
- Powierzchnia działki: 3376 m²
-
Powierzchnia użytkowa budynku: 198 m²
-
Powierzchnia zabudowy: 180 m²
-
Powierzchnia piwnic (z garażem): 110 m²
-
Powierzchnia parteru: 121 m²
-
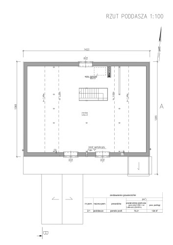
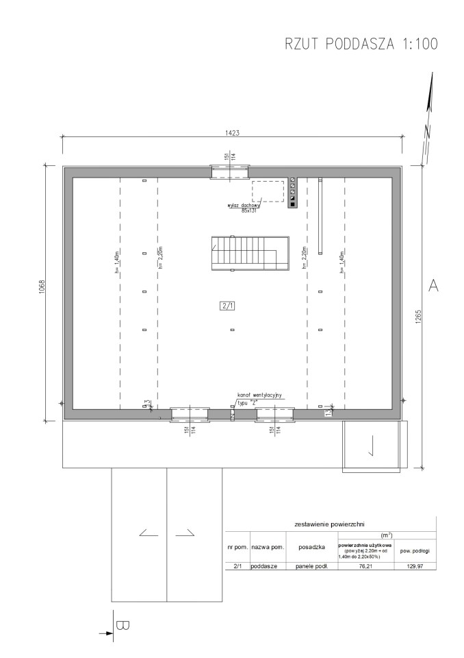
Powierzchnia poddasza: 77 m²
- Budynek gospodarczy: 74 m² (pow. użytkowa 67 m²) – możliwość adaptacji na niezależne mieszkanie
KONSTRUKCJA I STANDARD WYKOŃCZENIA
-
Technologia murowana
-
Ściany piwnic z bloczków betonowych, parter i poddasze z pustaków gipsowych K-35, docieplenie styropianem
-
Dach drewniany, pokryty blachodachówką, ocieplony wełną mineralną
-
Strop Teriva
-
Okna PCV
-
Schody zewnętrzne żelbetowe, wewnętrzne stalowe
-
W pokojach – parkiety, w kuchni i łazience – glazura i terakota
OGRZEWANIE I MEDIA
-
Ogrzewanie: piec na ekogroszek oraz kocioł gazowy dwufunkcyjny (systemy zamienne)
-
Woda, prąd, gaz – z sieci gminnej
-
Przydomowa oczyszczalnia ścieków
UKŁAD FUNKCJONALNY
-
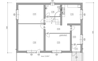
Piwnica (110 m²): garaż, pomieszczenia gospodarcze
-
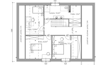
Parter (121 m²): wiatrołap, przestronny przedsionek, kuchnia z jadalnią, 3 duże pokoje, łazienka
-
Poddasze (77 m²): możliwość aranżacji 3 pokoi, łazienki i pralni; dodatkowo strych
BUDYNEK GOSPODARCZY
- Murowany, z możliwością adaptacji na funkcję mieszkalną (np. domek gościnny lub biuro).
- Posiada przyłącze prądu, wody i kanalizacji.
LOKALIZACJA I OTOCZENIE
-
Dojazd: droga asfaltowa + 90 m droga gminna gruntowa
-
4 km do autostrady A1 (ok. 6 min)
-
Komunikacja miejska: 900 m
-
Sklep: 1,5 km
-
Szkoła i przedszkole: 2,5 km
-
Spokojne, zielone otoczenie – sąsiedztwo lasu
Zapraszamy do kontaktu i prezentacji nieruchomości!
Nota prawna
Opis oferty zawarty na stronie internetowej sporządzany jest na podstawie oględzin nieruchomości oraz informacji uzyskanych od właściciela, może podlegać aktualizacji i nie stanowi oferty określonej w art. 66 i następnych K.C.Szczegóły



